
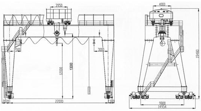
Cần cẩu nâng hạng nặng, đôi chân dê chùm cẩu 30 tấn
Đôi tia gantry crane với móc được áp dụng bên ngoài kho hoặc đường sắt sang một bên để làm thường nâng và dỡ công trình. Loại cẩu này bao gồm cầu, hỗ trợ chân, cơ quan du lịch cần cẩu, xe đẩy mạnh Tời nâng hạ, thiết bị điện và hệ thống điều khiển. Như là nhiệm vụ nặng thiết kế của nó, nó có thể được sử dụng rộng rãi trong tất cả các loại các lĩnh vực công nghiệp.
cần cẩu hạng nặng lift, đôi chân dê chùm cẩu 30 tấn
Đôi tia gantry crane với móc được áp dụng bên ngoài kho hoặc đường sắt sang một bên để làm thường nâng và dỡ công trình. Loại cẩu này bao gồm cầu, hỗ trợ chân, cơ quan du lịch cần cẩu, xe đẩy mạnh Tời nâng hạ, thiết bị điện và hệ thống điều khiển. Như là nhiệm vụ nặng thiết kế của nó, nó có thể được sử dụng rộng rãi trong tất cả các loại các lĩnh vực công nghiệp.






English
Български
Malti
dansk
Nederlands
Polski
türkiye
slovenščina
Català
عربي
suomi
Melayu





