
HD loại châu Âu Palăng điện đơn dầm dầm trên không cần cẩu
Cần cẩu cầu trục đơn kiểu châu Âu là máy nâng nhỏ gọn được thiết kế và chế tạo theo đúng tiêu chuẩn của FEM và DIN, với công nghệ tiên tiến và thiết kế đẹp mắt. Chia thành loại chung và loại hệ thống treo, hỗ trợ việc sử dụng các Palăng điện tiêu chuẩn châu Âu, thích hợp cho hội thảo và xử lý vật liệu nhà kho, lắp ráp chính xác các bộ phận lớn và những nơi khác.
HD loại châu Âu Palăng điện đơn dầm dầm trên không cần cẩu
Mô tả ngắn gọn:
Cần cẩu cầu trục đơn kiểu châu Âu là máy nâng nhỏ gọn được thiết kế và chế tạo theo đúng tiêu chuẩn của FEM và DIN, với công nghệ tiên tiến và thiết kế đẹp mắt. Chia thành loại chung và loại hệ thống treo, hỗ trợ việc sử dụng các Palăng điện tiêu chuẩn châu Âu, thích hợp cho hội thảo và xử lý vật liệu nhà kho, lắp ráp chính xác các bộ phận lớn và những nơi khác.
Nó có thể được sử dụng rộng rãi trong sản xuất máy móc, luyện kim, dầu khí, hóa đá, cảng, đường sắt, hàng không dân dụng, thực phẩm, làm giấy, xây dựng, hội thảo ngành công nghiệp điện tử, nhà kho và các tình huống xử lý vật liệu khác, đặc biệt. áp dụng cho vật liệu xử lý cần định vị chính xác, các thành phần lớn chính xác lắp ráp tình hình.
Hình ảnh chi tiết:
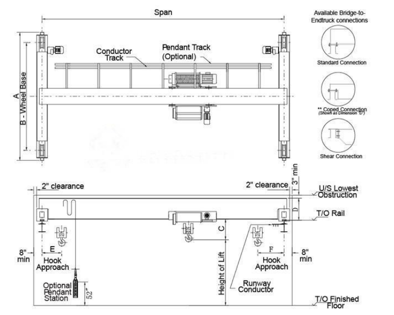
Bản vẽ phác thảo:
Các thông số kỹ thuật:
Span | m | 7,5 | 10.5 | 13,5 | 16,5 | 19,5 | 22,5 | 25,5 |
Sức chứa | t | 1 ~ 12.5t | ||||||
Tổng khối lượng | Kilôgam | 1781 ~ 12086 | ||||||
Trọng lượng xe đẩy | Kilôgam | 405 ~ 740 | ||||||
Tối đa Tải bánh xe | kn | 13,5 ~ 90,94 | ||||||
Du lịch đường sắt | P24 ~ P43 | |||||||
Tốc độ nâng | m / phút | 0,8 / 5 | 0,8 / 5 | 0,8 / 5 | 0,8 / 5 | 0,8 / 5 | 0,8 / 5 | 0,8 / 5 |
Nâng tạ | m | ≥ 6 | ≥ 6 | ≥ 6 | ≥ 6 | ≥ 6 | ≥ 6 | ≥ 6 |
Tổng công suất động cơ | kw | 4,31 | 4,31 | 4,31 | 4,31 | 4,67 | 4,67 | 4,67 |
Tốc độ cần cẩu | m / phút | 3-30 | 3-30 | 3-30 | 3-30 | 3-30 | 3-30 | 3-30 |
Tốc độ xe đẩy | m / phút | 2-20 | 2-20 | 2-20 | 2-20 | 2-20 | 2-20 | 2-20 |
Nhiệm vụ làm việc | M5 / A5 |